TOTAL WHITE 6_

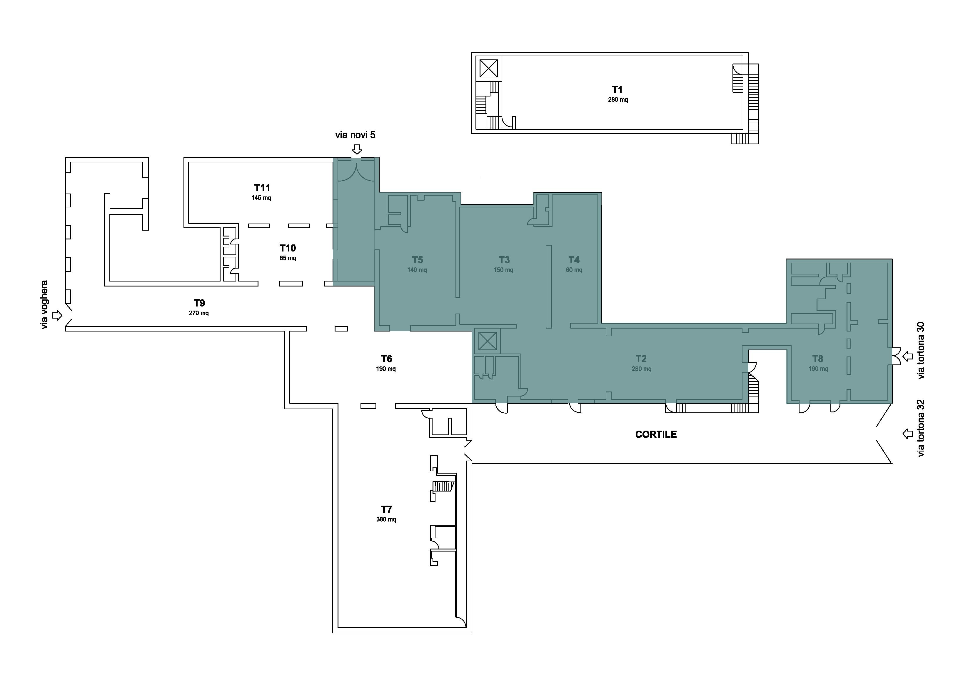
TOTAL WHITE 6_ SPAZI T8+T2+T3+T4+T5_850 mq

DESCRIZIONE:

  • T8_ 180 mq. ingresso / presentazione prodotto
  • T2_ 280 mq. conferenza / presentazione prodotto/area catering
  • T3_150 mq. conferenza / presentazione prodotto/area catering
  • T4_60 mq.  presentazione prodotto/guardaroba/ back/appoggio catering
  • T5_140 mq.conferenza / presentazione prodotto/area catering

CARATTERISTICHE:

  • Ingresso cortile Via Tortona 32 ,via Tortona 30, Via Novi 5
  • Cortile in condivisione
  • 850 mq.
  • Piano Terra
  • Wifi alta velocità
  • 8 bagni piano terra
  • A/C
  • Impianto luci di base
  • Impianto anti-incendio
  • Potenza: 150 Kw