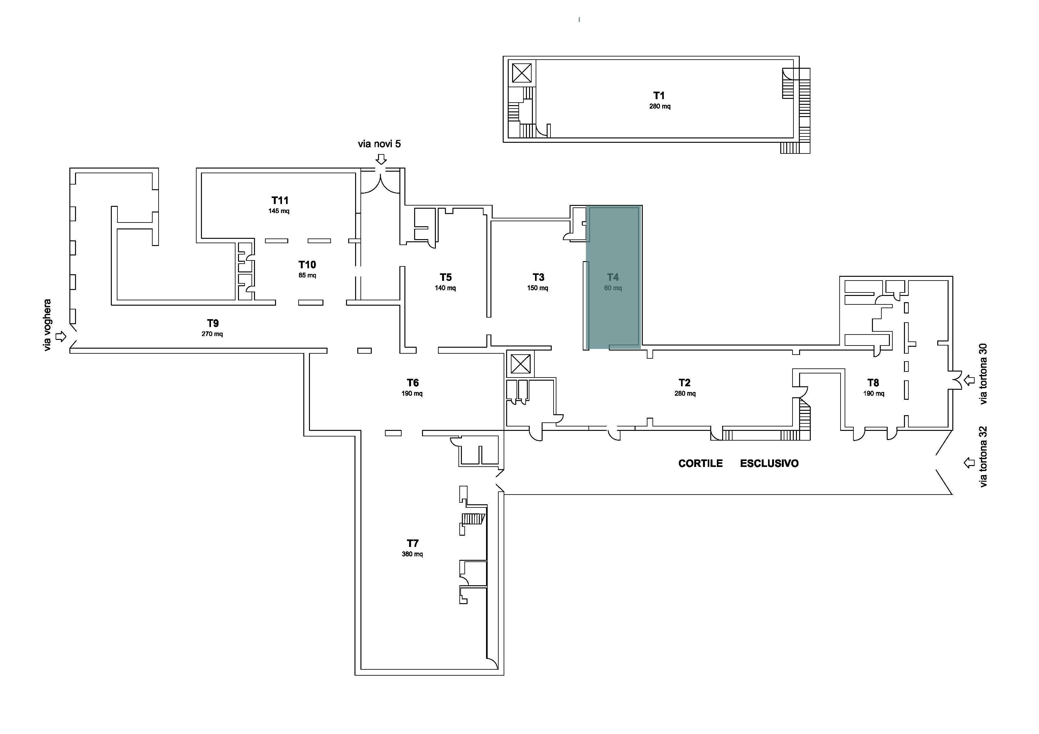
T4

T4 è un open space costituito da una piccola veranda al pianoterra caratterizzata da un grande lucernario. 

Location ideale per showroom di moda o eventi legati al Fuorisalone con installazioni particolari e innovative. 

Spazio luminoso, dinamico e moderno. Se utilizzato in collegamento all'open space T3 è un'ottima soluzione per eventi che richiedono molta luce naturale e uno spazio modesto, ordinato ed elegante.

L'ingresso è situato nel cortile di Via Tortona 32.

 

CARATTERISTICHE

  • 1 + 2 ingresso servizio Uomo / Donna

  • Wi-fi

  • Impianto anti-incendio

 

DIMENSIONI E CAPIENZA

  • Superficie lorda: 76 m²

  • Superficie netta: 64 m²

  • Altezza massima 5 m 

  • Standing: 70 pax

  • Sitting: 55 pax

 

DOTAZIONI

  • Impianto autonomo di condizionamento / riscaldamento

  • Illuminazione​

 

SCHEDA TECNICA ELETTRICITÀ 

  • 4 prese CEE 16 A 220 volt

  • 2 prese CEE 32 A 380 volt (3P + N + T)

  • 4 prese civili