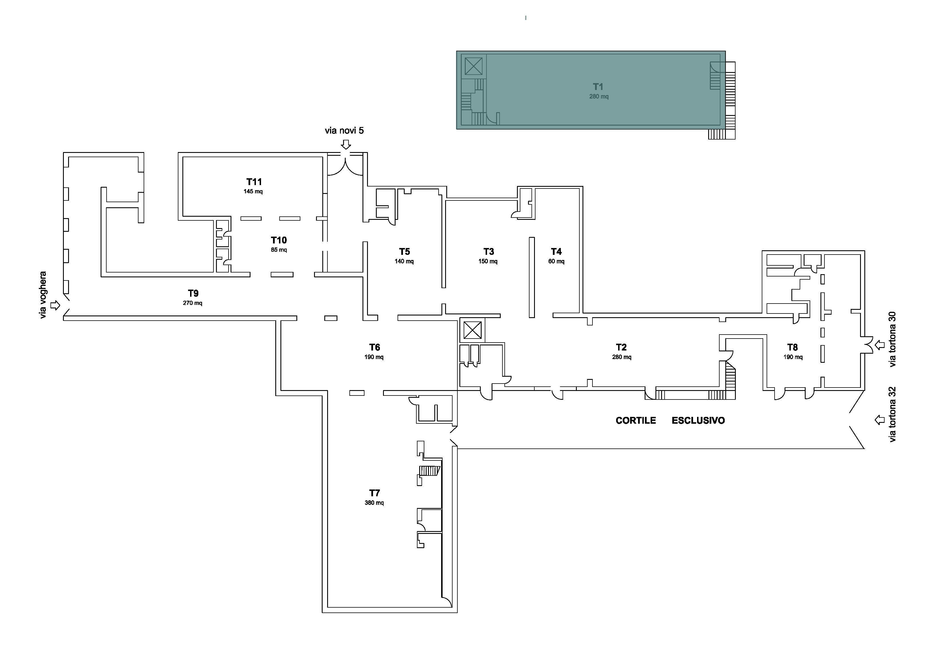
T1

T1  sito al piano primo, in passato era un locale adibito all'assemblaggio delle materie prime, oggi è stato riqualificato e trasformato in un grande open space luminoso. 

Lo spazio combina eleganza e tradizione ed è caratterizzato da un parquet di listelli di legno di 5 cm di spessore e da capriate a vista. Ideale per showroom di moda o eventi legati al Fuorisalone durante la Milano Design week.

Location molto accogliente è usata per conferenze, eventi aziendali, meeting , produzioni digitali, eventi in streaming, sfilate virtuali.

La location si trova al 1° piano e ha l’ingresso dal cortile di Via Tortona 32, raggiungibile tramite scale e montacarichi per il trasporto delle merci.

                    

CARATTERISTICHE

  • 2 bagni al piano terra Uomo / Donna

  • Wi-fi

  • Impianto anti-incendio

  • Montacarichi
     

DIMENSIONI

  • Superficie netta: 280 m²

  • Altezza massima 6 m
     

DOTAZIONI

  • 1 punti carico e scarico acqua

  • Impianto autonomo di condizionamento / riscaldamento

  • Illuminazione​

  • montacarichi

 

SCHEDA TECNICA ELETTRICITÀ

  • 4 prese CEE 16 A 220 volt

  • 2 prese CEE 32 A 380 volt (3P+N+T)

  • 8 prese civili