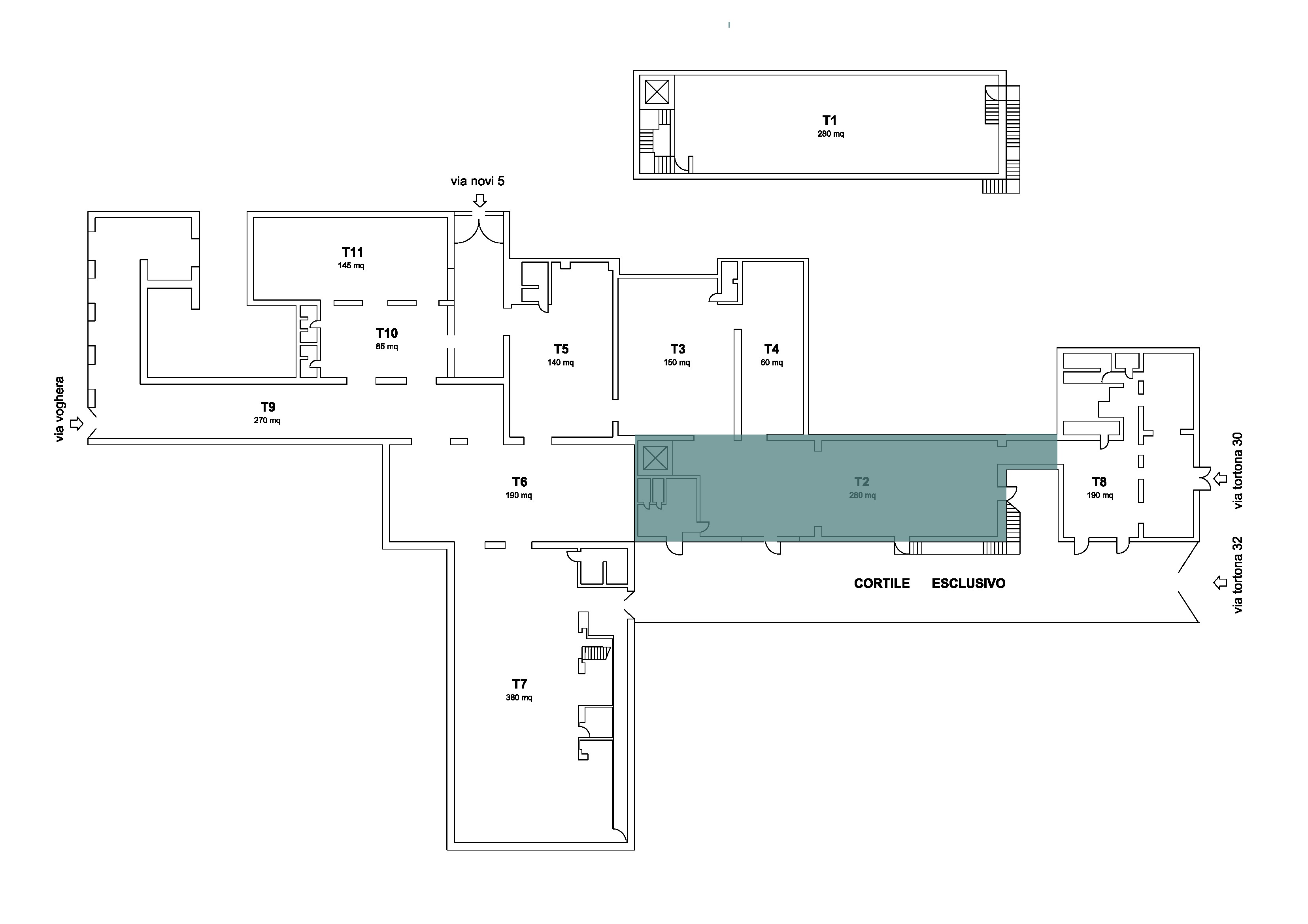
T2

T2 era un locale adibito alla tornitura manuale del metallo collegato con il laboratorio artigianale Silver Tre, ancora oggi presente nel complesso. La location, recentemente ristrutturata, è ideale come spazio per eventi di ogni genere e si presenta in total white.

Gli alti soffitti e le graziose nicchie luminose rendono questo open space adatto per la presentazione di prodotti, l'esposizione di oggetti  legati al design e alla moda, eventi in streaming, digital meeting ,  produzioni digitali, sfilate virtuali ,servizi fotografici, spot pubblicitari.

Numerose sono state le installazioni allestite in questa location, per il Fuorisalone e la Milano Fashion Week.

La location si trova al piano terra ed ha l’ingresso dal cortile di Via Tortona, 32.                      

 

 

CARATTERISTICHE

  • 2 servizi ingresso Uomo / Donna

  • Wi-fi

  • Impianto anti-incendio 

 

DIMENSIONI E CAPIENZA

  • Superficie netta: 230 m²

  • Altezza massima 4,80 m
     

DOTAZIONI

  • Impianto autonomo di condizionamento / riscaldamento

  • Illuminazione​

 

SCHEDA TECNICA ELETTRICITÀ 

  • 6 prese CEE 16 A 220 volt

  • 4 prese CEE 32 A 380 volt (3P + N + T)

  • 8 prese civili