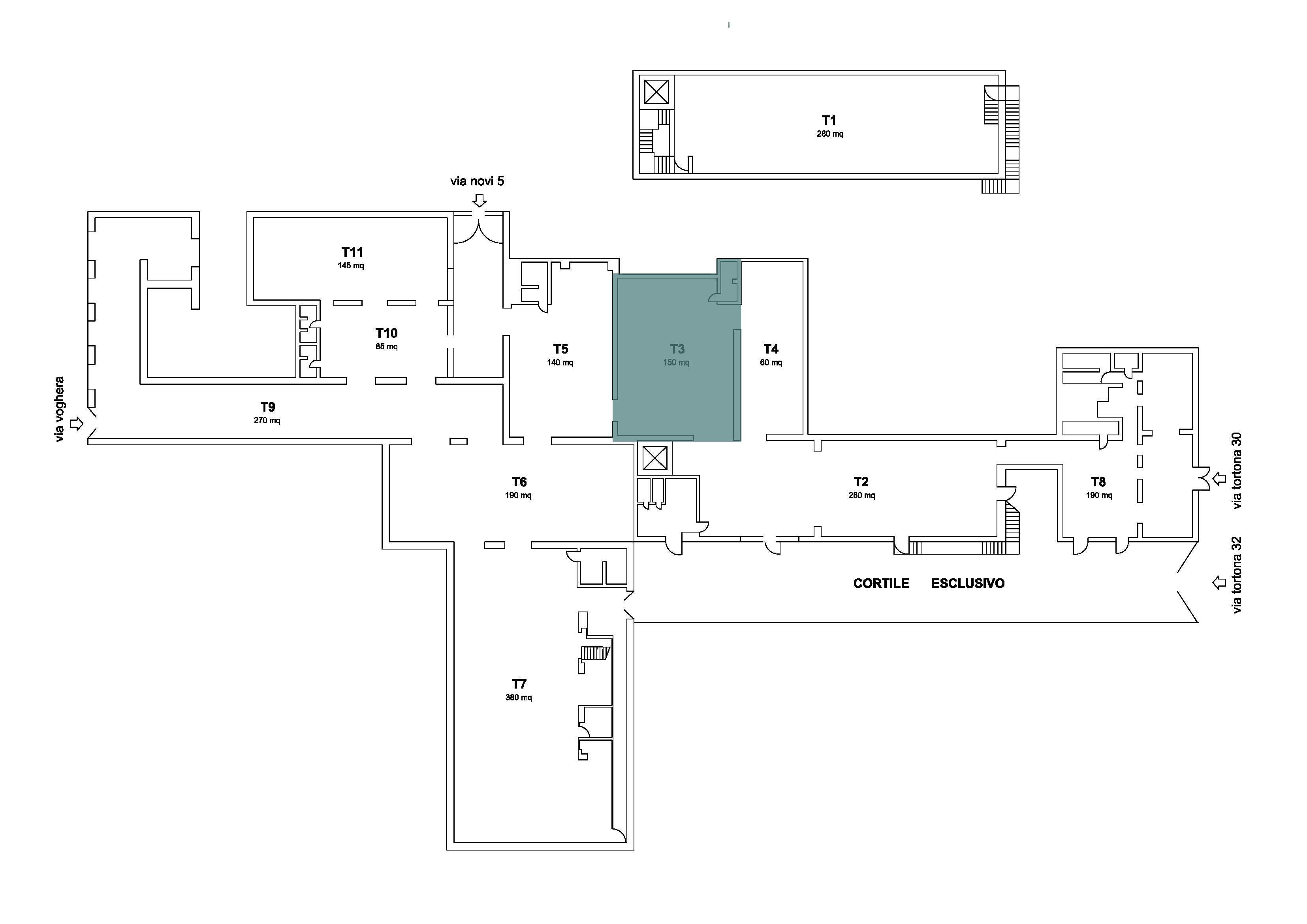
T3

T3 è un ampio spazio, situato al pianoterra, geometrico e pulito nelle sue forme essenziali. Gli alti soffitti e i larghi lucernari, testimonianza del periodo industriale, rendono l'open space luminoso valorizzandone i dettagli e le forme.

Gli alti soffitti e i lucernari facilmente oscurabili, rendono lo spazio adatto per eventi in streaming, produzioni digitali, servizi fotografici e spot pubblicitari.

La sua posizione è strategica essendo situato al centro del complesso TORNERIA TORTONA.

Lo spazio modulare può avere un doppio ingresso: dal cortile di Via Tortona, 32 oppure da Via Novi, 5 se unito all'open space T5

 

CARATTERISTICHE

  • 1 + 2 ingresso servizio Uomo / Donna

  • Wi-fi

  • Impianto anti-incendio

 

DIMENSIONI E CAPIENZA

  • Superficie lorda: 168 m²

  • Superficie netta: 141 m²

  • Altezza massima 5 m 

  • Standing: 162 pax

  • Sitting: 140 pax

 

DOTAZIONI

  • Impianto autonomo di condizionamento / riscaldamento

  • Illuminazione​

 

SCHEDA TECNICA ELETTRICITÀ 

  • 8 prese CEE 16 A 220 volt

  • 4 prese CEE 32 A 380 volt (3P + N + T)

  • 8 prese civili